- Home
- UNIVERSITY OF EXETER CREATIVE QUADRANT SPACE
University of Exeter Creative Quadrant Space
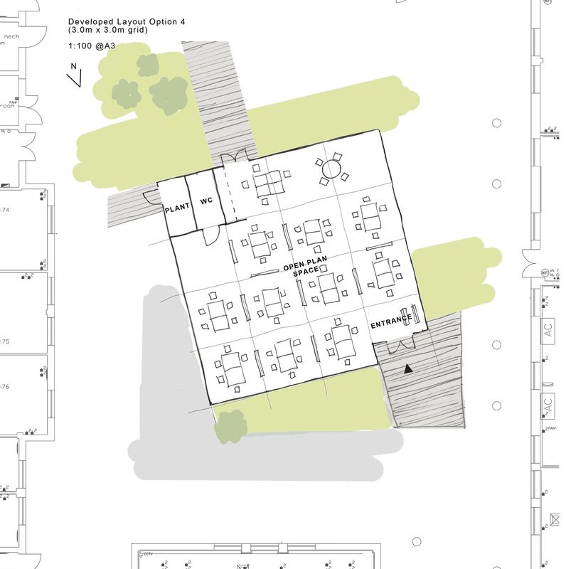
The design of this new makerspace for The University of Exeter’s Business School takes the form of an open plan teaching space for 40-50 students. The building occupies a central courtyard location in the heart of the business school.
In accordance with the client’s brief, the design is simple and robust, with minimal interior finishes. The building is future-proof with respect to campus development and can be dismantled and moved if required.
The outside appearance of the building is a nod to the cutting-edge design teaching offered by the faculty.
In response to the local authority’s planning policy and the University’s environmental agenda, the project is targeting a BREEAM ‘Excellent’ rating.
LOCATION: EXETER
CLIENT: UNIVERSITY OF EXETER
VALUE: £434K
COMPLETION: 2020
SERVICE: ARCHITECTURE
SECTOR: EDUCATION
STRUCTURES: JOHN GRIMES
SERVICES: DRAC
COST CONSULTANT: WELLING PARTNERSHIP
-
Related Projects
-
FITZALAN HIGH SCHOOL, CARDIFFThis replacement new 11-18 high school represents a significant new facility for the pupils, staff and local community -
OLD COLLEGE, ABERYSTWYTHRestoration and adaptive re-use of landmark Grade I listed Victorian University building into an arts focussed community facility -
COLEG Y CYMOEDD SPORTS CENTRE OF EXCELLENCEA landmark sports and teaching development at the entrance to the Parc Nantgarw estate -
YSGOL Y GRAIG PRIMARY SCHOOLNew build, 240 pupil, one form entry primary and nursery school in Merthyr Tydfil -
SCHOOL OF HEALTHCARE SCIENCES RELOCATION, CARDIFF UNIVERSITYRelocation of the School of Healthcare to a new site adjacent to the UHW hospital -
ALEXANDER HOUSE OFFICE REFURBISHMENT, CARDIFF METROPOLITAN UNIVERSITYFull design services for the disused and dated 1980s 3-storey building, converting it into contemporary office space -
TEESSIDE UNIVERSITY: THE CURVECompetition-winning design for the heart of Teesside University’s campus -
LIFE SCIENCES INNOVATION CENTRE, INVERNESS£9 million Life Sciences Innovation Centre in Inverness for partnering Client consortium of Highlands and Islands Enterprise (HIE) and the University of the Highlands and Islands (UHI). -

-
UNIVERSITY OF EXETER CREATIVE QUADRANT SPACEThe new makerspace is a flexible, minimalist design located in a central courtyard, emphasizing sustainability and innovative design teaching -
UNIVERSITY OF SOUTH WALES NEWPORT CAMPUS REFURBISHMENTInterior Design services for phased refurbishment works -

-
BUSINESS SCHOOL AND GROWTH HUB, GLOUCESTERFlagship building for the University of Gloucester -
LIVERPOOL SCHOOL OF MANAGEMENTThe new extension is a highly sustainable, BREEAM Excellent building. -

-
CARDIFF SCHOOL OF ART + DESIGNOur second RIBA Award winning project for Cardiff Metropolitan University -
UNIVERSITY OF EDINBURGH NOREEN & KENNETH MURRAY LIBRARYBREEAM excellent new landmark building providing an array of teaching and learning environments -
SOUTH LANARKSHIRE COLLEGE LOW CARBON TEACHING BUILDINGFirst in the UK to achieve Outstanding rating in the BREEAM 2014 New Construction assessment process at both design and construction stage -
YSGOL HARRI TUDURThe largest school project undertaken by Pembrokeshire County Council to date. -
BRIDGWATER & TAUNTON COLLEGE: NATIONAL COLLEGE FOR NUCLEARThe new BREEAM Excellent building will form the southern hub of the Government’s flagship National College for Nuclear (NCfN) -

-
YSGOL BRO DINEFWR1200 pupil secondary school designed to BREEAM Excellent, and EPC rating of ‘A’ -
DAN-Y-COED CHILDREN'S RESIDENTIAL & SPECIALIST SCHOOLGroup of buildings designed to expand Orbis's care facilities for children/young adults with Autistic Spectrum Condition -
AGRICULTURE INNOVATION CENTRE, BRIDGWATERBREEAM Excellent, new build facility for Bridgwater College -
TOM REILLY BUILDING, LIVERPOOLDelivered in just two years, a new state-of-the-art faculty building -
JOHN RYLANDS LIBRARY, MANCHESTERRIBA Award-winning library, housing one of the world’s finest collections of books and manuscripts in one of the most impressive neo-Gothic buildings in Europe -
COLEG SIR GÂR (YR EFAIL / THE FORGE)A new hub of activity and professional teaching, training and performing spaces on the existing Graig Campus -
STOCKPORT COLLEGE CAMPUS DEVELOPMENTMasterplanner, lead consultant and designer of the Phase 1 and 2 redevelopment programme -
CARDIFF SCHOOL OF MANAGEMENTRIBA Award-winning building, forming first phase of a redevelopment masterplan for Cardiff Metroplitan University's Llandaff Campus -
ESSA PRIMARY SCHOOLSet up under the Government’s Free School initiative by the Essa Foundation Academies Trust -

-
COLEG Y CYMOEDD ABERDARE CAMPUSBREEAM Excellent new college building on a town centre site -

-
DEAFBLIND SCOTLAND LEARNING & RESOURCE CENTRECalled ‘The Field of Dreams’, this project offers deafblind people more opportunities to learn, enjoy a range of subjects, collaborate and become more familiar with the ever growing world of IT -
BRIDGWATER COLLEGE ADVANCED ENGINEERING CENTRE£4.2m new build Advanced Engineering Centre -
STUDENT SERVICES CENTRE, LAMPETERAn existing 1970s building, stripped back to the structural frame and completely remodelled to provide a dramatic new building in a highly prominent position facing the Grade II* listed St David’s College -
PATNA & ST XAVIER'S PRIMARY SCHOOLAmalgamation of two local primary schools onto a shared campus with nursery and shared community





